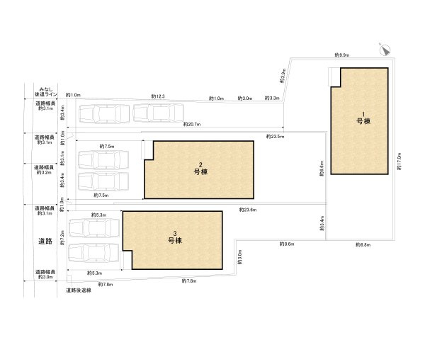
【区画図】駐車場並列2台可能
- 物件名
- 碧南市湖西町第2 新築一戸建
- 価格
- 2,390万円~2,590万円
- 建物面積
- 93.15㎡~102.87㎡
- 土地面積
- 44.4坪~51坪(146.78㎡~168.61㎡)
- 築年月
- 2025年11月(新築)
- 総戸数
- 3戸
- 設備条件
-
- 駐車2台可
- 耐震構造
- 設備(その他)
-
-
-
- 駐車場/月額
- 有/-
- 土地権利
- 所有権
- 国土法届出
- 不要
- 用途地域
- 第一種住居
- 取引態様
- 仲介
- 引渡し
- 相談
- 備考
- 徒歩10分の場所に碧南市立西端小学校があります。地震エネルギーを吸収し、建物の揺れを抑えてくれます。劣化対策をしてますので耐久性の高い建材を使っています。耐風構造なので、台風などの自然災害時も安心して過ごせます。八大不動産には、一戸建て情報が豊富にございます。まずはお気軽に0566-52-6063/info@hachidaifudousan.comまでお問い合わせ下さい。
-
その他
山形屋
106m(2分)
-
公園
湖西公園
173m(3分)
-
焼肉
花苑
226m(3分)
-
銀行
JAあいち中央西端支店
229m(3分)
-
郵便局
碧南西端郵便局
270m(4分)
-
コンビニエンスストア
セブン-イレブン碧南上町4丁目店
370m(5分)
-
保育園
西端保育園
491m(7分)
-
内科
深津医院
647m(9分)
-
市役所・区役所
碧南市役所 哲学たいけん村無我苑
678m(9分)
-
幼稚園
碧南市立西端幼稚園
686m(9分)
-
小学校
碧南市立西端小学校
778m(10分)
-
公園
油ヶ渕遊園地
806m(11分)
-
中学校
西端中学校
979m(13分)
-
喫茶店・カフェ
喫茶レストラン・パッション
1098m(14分)
-
和風料理
チャンコやぐら 西端店
1137m(15分)
-
ドラッグストア
ココカラファインジップドラッグ荒居店
1143m(15分)
-
ドラッグストア
スギドラッグ碧南坂口店
1282m(17分)
-
スーパー
イクタフード平和店
1990m(25分)
-
スーパー
アオキスーパー 碧南店
2315m(29分)
-
駅
北新川駅
2848m(36分)
碧南市湖西町第2 新築一戸建の基本情報
碧南市湖西町第2 新築一戸建の詳細情報
碧南市湖西町第2 新築一戸建のコメント(おすすめポイント)
碧南市湖西町第2 新築一戸建で募集中の物件
周辺施設
近隣の物件
碧南市湖西町第2 新築一戸建

